Vivienda prefabricada duradera con fachadas de hormigón y cemento color a elegir.
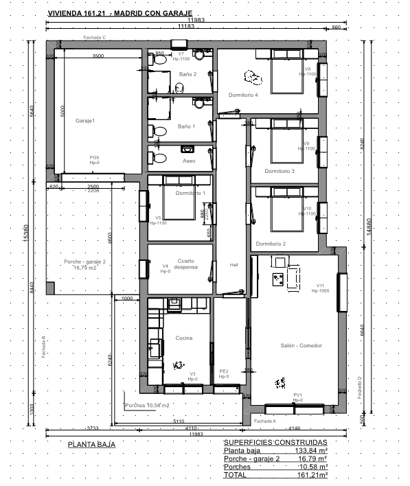
Cuenta con un amplio salón-comedor, cocina, cuarto, 4 habitaciones y 2 baños completos, 1 aseo, garaje y porches.
Ventajas de las casas de 4 dormitorios y garaje
Estas viviendas prefabricadas ofrecen flexibilidad en el uso, e incluso un mayor valor de reventa.
Además, los planos de casas prefabricadas VME de 4 dormitorios con garaje son especialmente versátiles y ofrecen multitud de beneficios.
Las casas VME son construcciones sostenible y fácilmente ampliables.
Solicita presupuestos de construcción personalizados y detallados, sin compromiso, además con facilidades de pago.


VME en Facebook Construcción de Viviendas VME fotos y planos de casas prefabricadas modernas con 2, 3 y 4 habitaciones ó más, en construcción ó ya finalizadas en Barcelona, Valencia, Madrid y toda España.
Por favor ingrese su nombre de usuario o dirección de correo electrónico. Recibirá un enlace para crear una nueva contraseña por correo electrónico.
