Una casa con acabados modernos en hormigón, perfecta para familias grandes en Oferta.
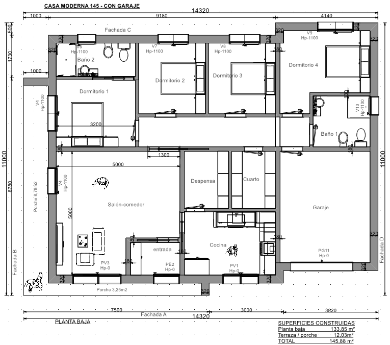
Cuenta con un amplio salón-comedor, garaje, cocina, 4 habitaciones, 2 baños, cuarto, despensa y porche, superficie construida 145,88m2.
¡No se requiere pago por adelantado de las obras! La mejor GARANTÍA para ti.
Ahorro mínimo de 30% en el precio de mercado con Viviendas VME.
Construcción de viviendas por fases ¡LA MEJOR GARANTIA para el usted!
Presupuesto claro y transparente
Ventajas del Diseño y Anteproyecto estructural incluido en el precio.
Garantías de construcción VME
Nos adaptamos a todos los estilos de viviendas: Modernas, Contemporáneo, Minimalista, Mediterráneo, Estilo colonial, Estilo rural. La estética y la sostenibilidad se combina, creando nuevos estilos con lo mejor de cada una de estas corrientes.


VME en Facebook Construcción de Viviendas VME para ver más casas prefabricadas modernas pasivas en construcción ó ya finalizadas en Barcelona y toda España.
Por favor ingrese su nombre de usuario o dirección de correo electrónico. Recibirá un enlace para crear una nueva contraseña por correo electrónico.
