Casa Moderna Prefabricada Barcelona 220,16 m2 construidos.
Es una Vivienda con fachada de hormigón y grandes ventanales.
Las formas modernas y volúmenes de estas viviendas modernas son realmente audaces y el profesionalismo arquitectónico es evidente.
Los grandes ventanales de la Casa Moderna Prefabricada Barcelona no pueden faltar, en teoría, son unos de sus sello más distintivo.
Es muy común que las casas modernas prefabricadas tengan ventanales rectangulares perfectamente alineados con el diseño arquitectónico en pleno.
Los espacios vacíos en las casas modernas prefabricadas suelen estar conformados por los balcones con barandas de vidrio que generan condiciones visuales impactantes.
La modernidad de las casas prefabricadas VME también se traduce en ahorro energético y optimización de los recursos naturales.
Características de la casa moderna modelo Barcelona 220,16 m2
Doble aislamiento, fachadas de hormigón en sistema SATE, cumple con casa pasiva.
El mejor sistema para eliminar puentes térmicos acabado en mortero decorativo.
Acristalamientos triples de seguridad con rotura de puente térmico, cumple con la normativa de Casa Pasiva.
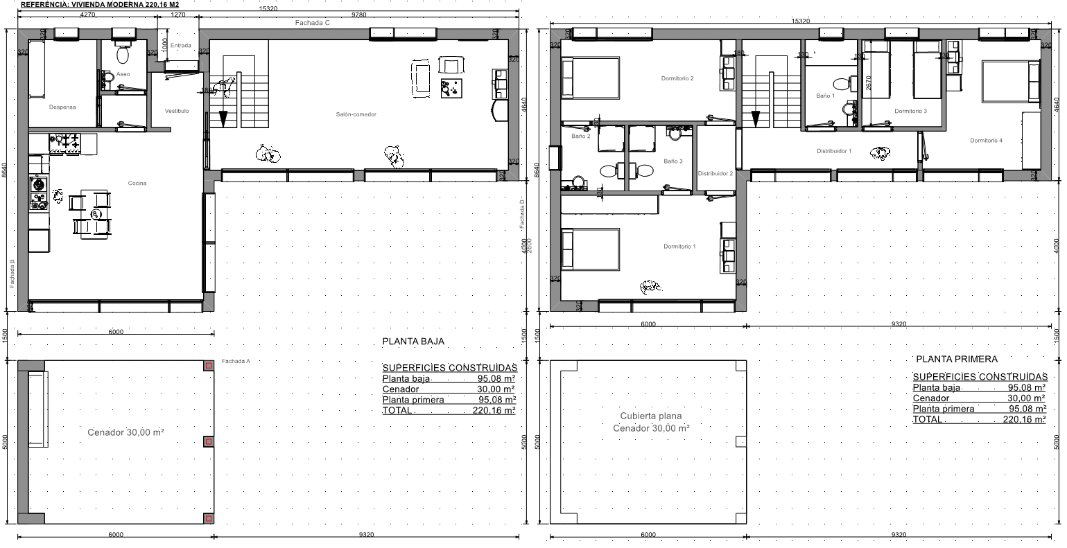
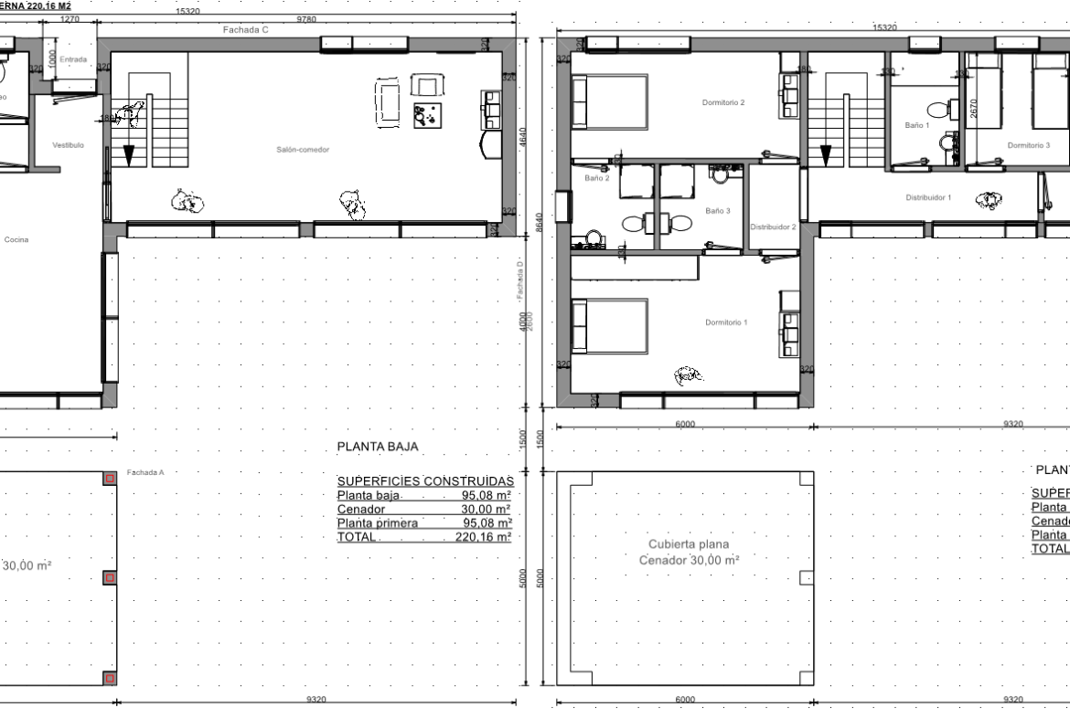
En la planta baja, salón comedor muy amplio, cocina, un distribuidor, despensa, un aseo y un porche.
En la planta alta, un distribuidor, cuatro dormitorios y tres baños.
En esta opción, entregamos la casa prefabricada con aislamientos ideales para casas pasivas prefabricadas o edificios de consumo casi nulo (nZEB).
Casa prefabricada con la teja puesta, acabado final en fachadas de hormigón con sistema SATE y revestimiento en cemento coloreado.
Carpintería exterior de PVC de alta calidad para casas prefabricadas pasivas.
Cerramientos completos de la casa prefabricada exteriores, interiores que reduce las fuerzas sísmicas de la casa prefabricada y aumenta la protección frente al fuego.


Construcción de Viviendas VME en Facebook, entra para ver más casas prefabricadas en Barcelona y toda España.