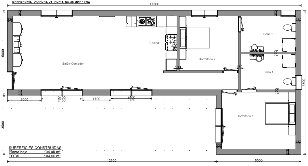
Se trata de una casa con fachada de hormigón, moderna, prefabricada con un área común en un espacio abierto, 2 dormitorios y 2 baños.
Casa moderna Valencia 104m2 la Elegancia de la Simplicidad.
Una vivienda moderna de estilo minimalista, que se caracteriza por líneas limpias y una paleta de colores neutros.
Casa moderna Valencia 104m2 se destaca la fachada de hormigón muy utilizado actualmente como material de acabado de construcción de casas prefabricadas modernas de alta calidad.
Se trata de un estilo de casa prefabricada moderna que elogia el orden elemental de las líneas rectas y la precisión de los acabados.
La vivienda prefabricada moderna es una buena alternativa ante un mercado inmobiliario en el que los precios pueden ser muy elevados
Las ventanas grandes de esta casa moderna prefabricada crea una sensación de amplitud y luminosidad.
Podemos modificar la distribución de la casa moderna prefabricada a su medida, todas nuestras casas prefabricadas modernas son modificables.
Para más información respecto a la calidad constructiva de esta casa prefabricada, consulte artículos relacionados sobre construcción de Viviendas VME
Encuentra tu casa moderna prefabricada de alta calidad que mejor se adapte a tus necesidades.


Visite nuestra pagina Facebook Construcción de Viviendas VME No te pierdes modelos de casas y fotos de casas modernas en proceso de construcción.