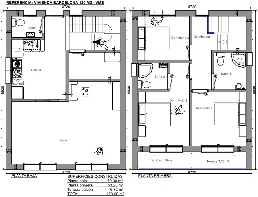
Casa prefabricada 120m2 Barcelona con 3 dormitorios, su precio comienza en los 120.168 euros.
VME viene sirviendo a los clientes en España desde hace más de 20 años, con cientos de obras realizadas.
Si eres un amante del diseño moderno con cubierta inclinada, modelo Barcelona 120m2 es una casa prefabricada que te encantará.
Esta casa prefabricada moderna destaca por sus techos altos y su diseño moderno y llamativo, que combina el hormigón con vidrio.
La formas simple de la casa prefabricada, el diseño abierto, como así también el énfasis en las vistas y la luz natural, son las características definitorias de numerosos diseños de fachadas de Viviendas VME.
En las fachadas de casas prefabricadas VME el hormigón es el favorito, aplicado bajo un esquema monocromático aportan luz, hermetismo, elegancia, audacia u originalidad.
Presencia de hormigón, cemento, acero, cristal y ladrillo.
Utilización de colores neutros o materiales vistos
En las fachadas de casas prefabricadas VME el empleo de materiales sencillos son una constante.
Nuestro Catálogo de Casas Prefabricadas y Viviendas Pasivas Modernas te servirá como guía para establecer los requisitos que deseas cubrir en tu futura vivienda.


Visite nuestra pagina Facebook Construcción de Viviendas VME para ver más casas prefabricadas de 120m2, 150m2, 100m2 en Barcelona de alta calidad.