Casa Prefabricada Girona con garaje en Oferta
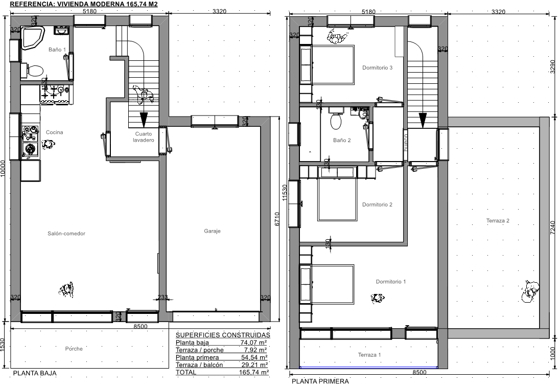
El modelo 165,74m2 construidos es una vivienda prefabricada con fachadas de hormigón, de tres dormitorios, dos baños, un garaje, salón, cocina y cuarto lavadero.
La casa prefabricada con garaje se organiza en dos plantas; la planta baja la zona de día y la superior la de noche. Es una casa prefabricada de alta calidad que combinan características funcionales y estéticas en la construcción de edificios.
Eficiencia en la construcción.
Las casas prefabricadas VME industrializadas se construyen en un entorno controlado, lo que reduce los retrasos debido a factores climáticos.
Las viviendas prefabricadas de alta calidad VME, ofrecen una amplia gama de opciones de diseño y personalización, permitiendo a los propietarios adaptar la casa a sus gustos y necesidades.
Casas prefabricadas modernas VME con fachadas de hormigón, de alta calidad, se adapta a sus necesidades con una gran variedad de acabados.
¿Como Trabajamos?


VME en Facebook Construcción de Viviendas VME para ver más casas prefabricadas modernas pasivas en Girona y toda España.
Por favor ingrese su nombre de usuario o dirección de correo electrónico. Recibirá un enlace para crear una nueva contraseña por correo electrónico.
