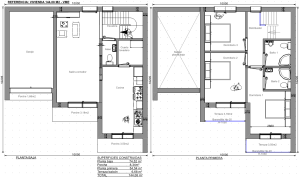
Planos Casa 144,08m2 – VME

  • hace 2 años
  • 0

Únete a la discusión

Comparar listados

Comparar