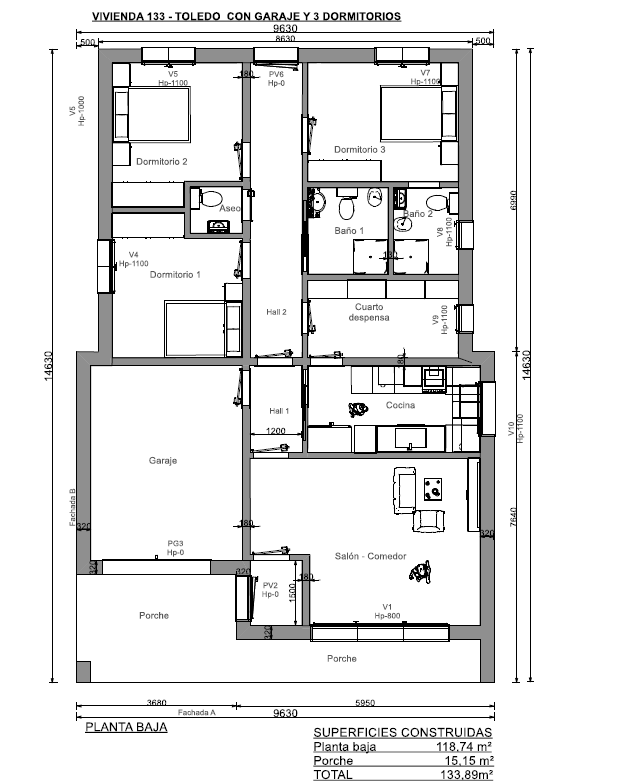
Casas con 3 dormitorios y garajes con cubierta inclinada de alta calidad
Descubre las mejores ideas de casas de 3 dormitorios y garajes, modernas y económicas, además de alta calidad, con fachada de hormigón.
Para obtener presupuesto y planos personalizados de casas prefabricadas con garajes, puedes contactar con nosotros.Envíenos su idea de casa en el formato que prefiera: dibujo, plano, croquis o cualquier referencia visual.
Con nosotros, la calidad duradera de las casa prefabricadas modernas que construimos y el aspecto elegante y minimalista está garantizado. Además, te damos la opción de llevar la sostenibilidad tan lejos como tú quieras.


Construcción de Viviendas VME en facebook, ver más fotos de casas prefabricadas con garajes y casas modernas cubicas en Madrid, Valencia, Barcelona y toda España.
Por favor ingrese su nombre de usuario o dirección de correo electrónico. Recibirá un enlace para crear una nueva contraseña por correo electrónico.
