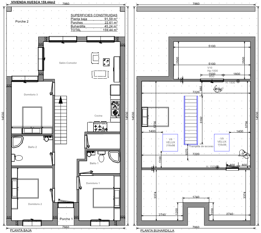
planos casa Huesca 15944 VME

  • hace 1 año
  • 0

#image_title

Comparar listados

Comparar