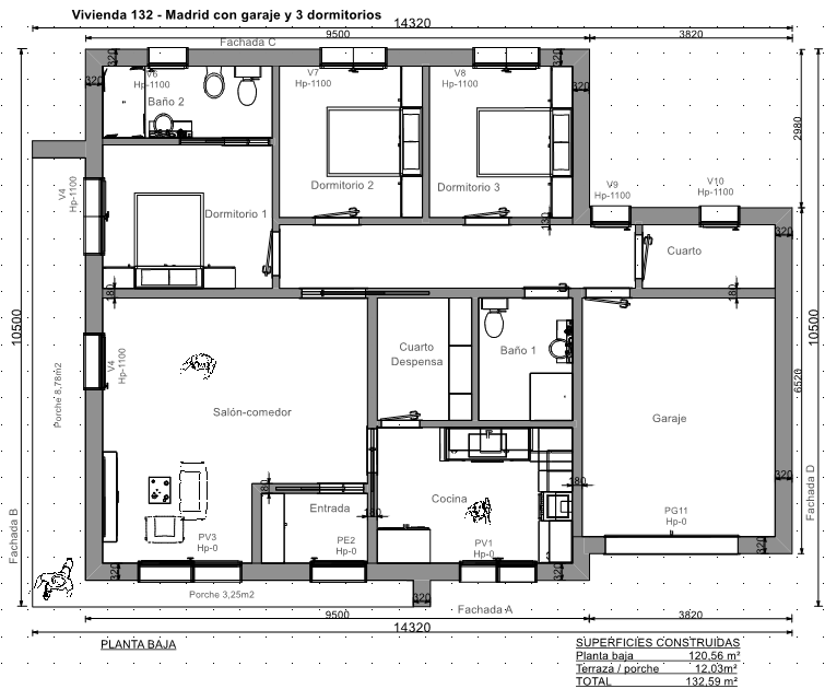
Casas con garajes y 3 dormitorios – Madrid 132 m2
Casas de alta calidad con acabados en hormigón y cemento.
✓ ¡No se requiere pago por adelantado de las obras! La mejor GARANTÍA para usted.
Modelo Madrid 132 m2 construidos, con 3 dormitorios, 2 baños, 2 cuartos, cocina, salón, porche y garaje.
Cómodas y versátiles, las casas modernas prefabricadas VME en planta baja de tres habitaciones son la solución perfecta para muchas familias pequeñas y medianas.
✓ ¡No se requiere pago por adelantado de las obras! La mejor GARANTÍA para usted.
Así que, si te gustaría descubrir una selección de presupuestos y planos de casas modernas prefabricadas, solicita presupuesto sin compromiso.
Viviendas modernas prefabricadas VME


Construcción de Viviendas VME en facebook, ver más fotos de viviendas prefabricadas modernas en construcción en toda España.
Por favor ingrese su nombre de usuario o dirección de correo electrónico. Recibirá un enlace para crear una nueva contraseña por correo electrónico.
