Espectacular casa moderna y elegante con techos altos, fachada de hormigón y grandes ventanas.
La vivienda moderna VME no es sólo el lugar donde vivimos, es un espacio que influye en nuestra calidad de vida, en nuestra salud y en nuestro bienestar.
Las casas modernas prefabricadas VME son funcionales y se adaptan muy bien al paso del tiempo.
La luminosidad es muy importante en este estilo de casas modernas prefabricadas.
Ventanales grandes, todas las entradas de luz natural son bien recibidas en las casas modernas VME.
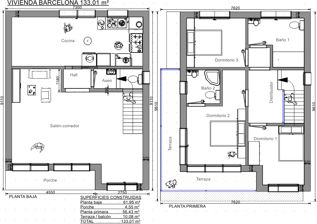
En la planta baja, un salón comedor grande, una cocina grande, hall, aseo y un porche.
En la planta primera, tres dormitorios, un dormitorio tipo suite con baño y terraza muy amplia,y el segundo lo más amplio.
Con nosotros, No pagarás las obras por adelantado. ¿Tienes alguna duda, comentario o quieres que hablemos?
Encantados de atenderte, mándanos tu mensaje a continuación.
¡Hablemos de tu proyecto!
La calidad duradera de las casas modernas prefabricadas VME y el aspecto elegante y minimalista está garantizado. Y, además, te damos la opción de llevar la sostenibilidad tan lejos como tú quieras.


Construcción de Viviendas VME en facebook, ver más fotos de casas prefabricadas modernas.
Por favor ingrese su nombre de usuario o dirección de correo electrónico. Recibirá un enlace para crear una nueva contraseña por correo electrónico.
