Es una casa prefabricada construida en Burgos en año 2018, con techo inclinado y fachada de hormigón.
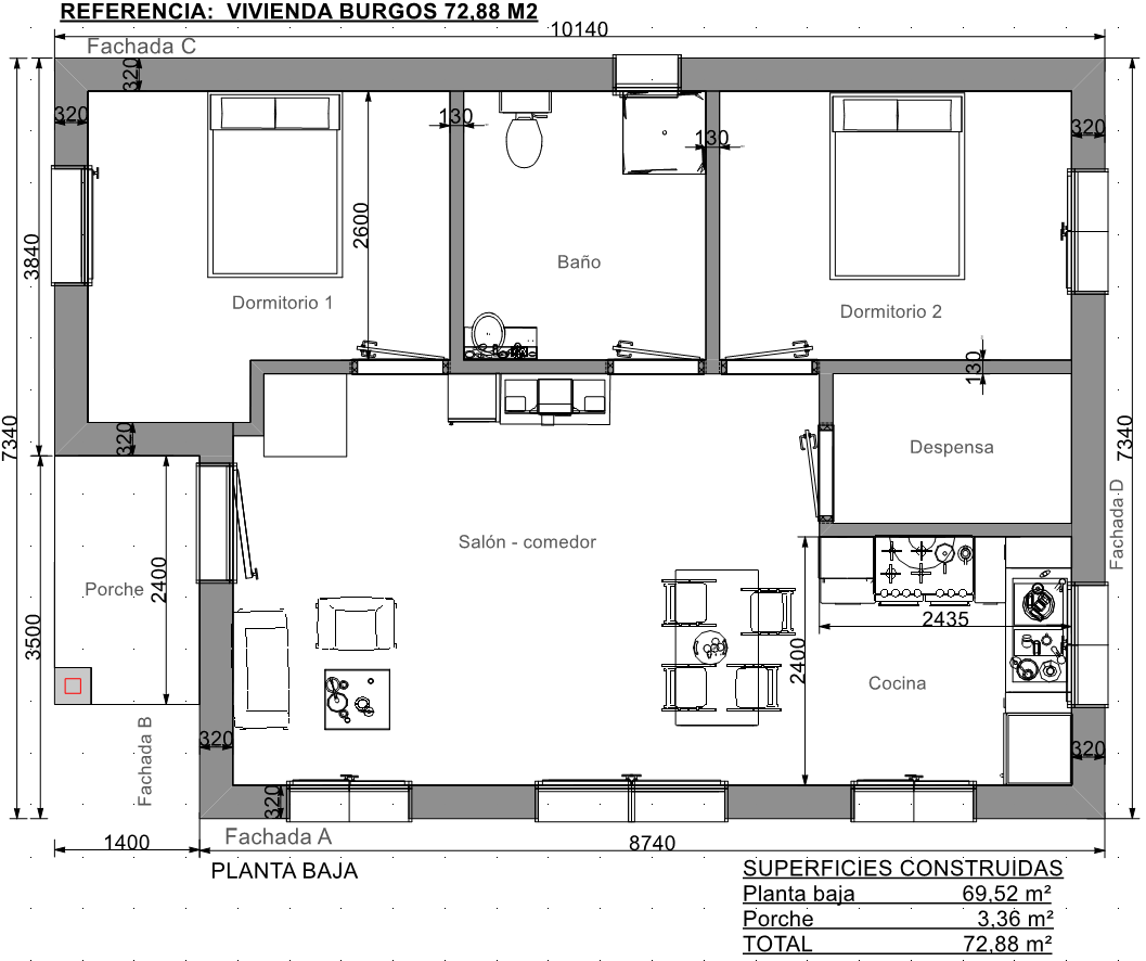
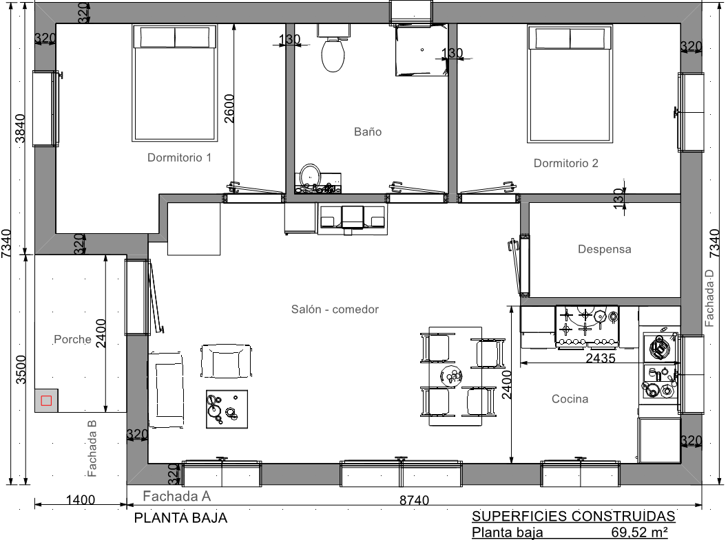
Planta baja, un amplio salón-comedor con cocina americana, despensa, dos dormitorios, un baño y porche.
Planta buhardilla, diáfana, se puede utilizar como trastero.
El plazo de finalización de la construcción adquirida será de maximo 90 días hábiles desde inicio de la obra en la parcela.
Incluyendo revestimientos y trasdosados interiores:
Constructora de casas pasivas prefabricadas VME, elige calidad, confianza y garantía con facilidades de pago.
Carpintería exterior de PVC – Cumple con la normativa de Casa Pasiva,
Aislamiento fachada: SATE sin puentes térmicos de altas prestaciones, ideales para casas pasivas o edificios de consumo casi nulo (nZEB).
Aislamiento térmico estructural de la casa pasiva prefabricada de alta calidad Euroclase A1.
Los materiales principales con los que se construye una casa prefabricada pasiva: madera, hormigón y acero.
Construcción prefabricada pasiva. Las uniones de los elementos estructurales entre si mediante conectores metálicos, que garantizan la unión con la cimentación, vigas y paneles entre si
Si bien es posible construir una casa pasiva o de consumo casi nulo con sistemas constructivos tradicionales, es importante tener en cuenta los beneficios de los sistemas prefabricados en madera aplicados a éste tipo de arquitectura.
En esta opción, entregamos la casa prefabricada con aislamientos ideales para casas pasivas prefabricadas o edificios de consumo casi nulo (nZEB).
Casa prefabricada con la teja puesta, acabado final en fachadas de hormigón con sistema SATE y revestimiento en cemento coloreado.
Carpintería exterior de PVC de alta calidad para casas prefabricadas pasivas.
Cerramientos completos de la casa prefabricada exteriores, interiores que reduce las fuerzas sísmicas de la casa prefabricada y aumenta la protección frente al fuego.


Construcción de Viviendas VME en facebook, ver más fotos de viviendas prefabricadas en Burgos y toda España.