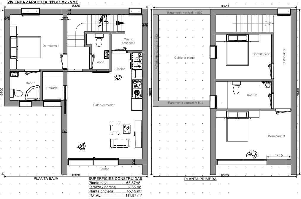
Especificaciones Técnicas de la casa prefabricada:
Superficie construida 111,87m2
Casa prefabricada moderna con 3 dormitorios, 2 baños, amplio salón-cocina, despensa, aseo y un porche.
Con la experiencia de construcción de casas prefabricadas de alta calidad de mas de 20 años,
hemos adquirido el conocimiento necesario para que todas nuestras casas se construyan como una vivienda pasiva de bajo consumo energético y confortables para vivir.
Descubre nuestro catálogo de viviendas prefabricadas, que presenta una amplia variedad de opciones para que encuentres la casa prefabricada que mejor se adapte a tus necesidades.


Visite nuestra pagina Facebook Construcción de Viviendas VME No te pierdes nuestras novedades. Dale al «Me Gusta y Comparte» Para ver más contenidos y fotos de viviendas en proceso de construcción ó finalizadas.
Por favor ingrese su nombre de usuario o dirección de correo electrónico. Recibirá un enlace para crear una nueva contraseña por correo electrónico.
