Casas y Chalets VME construcción de obra nueva en Cantabria acabados modernos en hormigón con vigas vistas GL24H, construida en 2025 nos vuelve a recordar por qué amamos lo que hacemos.
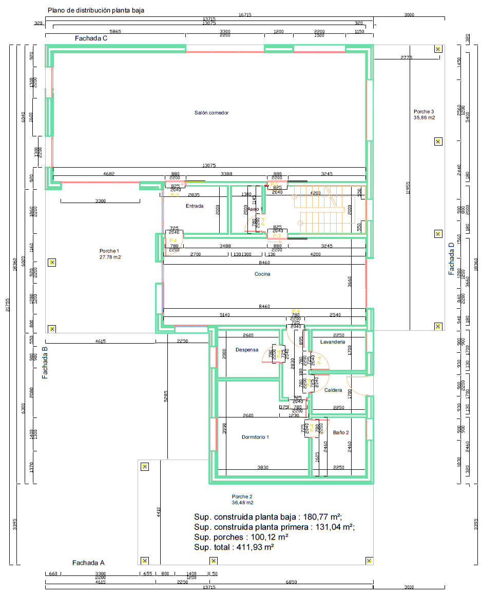
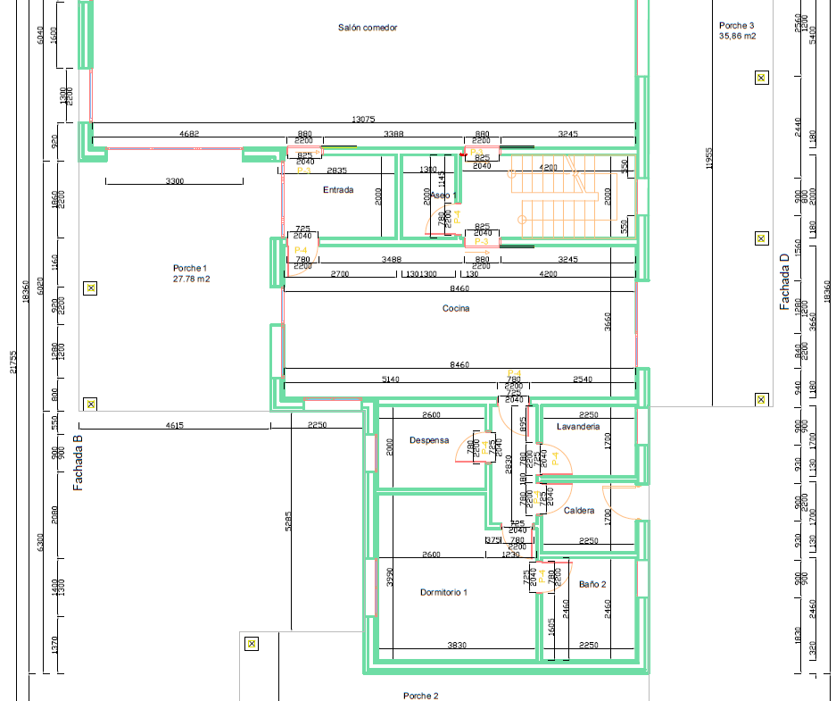
Chalet de alta calidad con 411 m2 construidos en una amplia parcela, este hogar ofrece una experiencia inigualable, donde la comodidad y el estilo se entrelazan en cada rincón. Siempre es un orgullo de construir una vivienda, especialmente si es grande y se adapta a necesidades del cliente. 🙂
Cada casa y chalet terminado es una historia de esfuerzo, confianza y nuevos comienzos.
Pide presupuesto de construcción gratis y sin compromiso.


Visite nuestra pagina Facebook Construcción de Viviendas VME No te pierdes nuestras casas prefabricadas y viviendas pasivas que construimos.
Por favor ingrese su nombre de usuario o dirección de correo electrónico. Recibirá un enlace para crear una nueva contraseña por correo electrónico.
