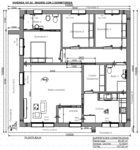
PLANO – Casa 107 con 3 dormitorios y porche

  • hace 3 semanas
  • 0

Comparar listados

Comparar