Vivienda con fachadas de hormigón y grandes ventanas.
Se trata de una opción de construcción moderna muy actual que rompe totalmente la estética tradicional.
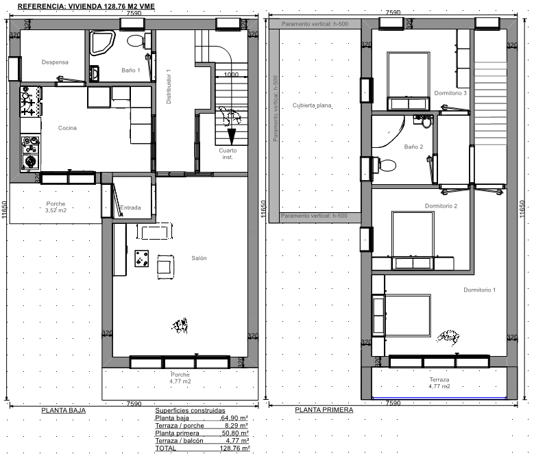
Casa prefabricada modelo Murcia 128, 76m2 construidos con 3 dormitorios, 2 baños, salón, cocina, despensa cuarto de instalaciones y terrazas…
Construcciones prefabricadas VME pede ser tu aliado de negocio.
Tener la casa de tus sueños es posible con Viviendas VME, son casas de alta calidad eficientes y respetuosos con el medio ambiente.
El hormigón es uno de los materiales más comunes en la construcción de fachadas para las casas prefabricadas y con el que se pueden crear fachadas muy originales.
La inspiración para el diseño de tu casa prefabricada de alta calidad puede provenir del lugar más inesperado…
En la actualidad las fachadas de hormigón con grandes ventanas son consideradas como adiciones arquitectónicas de primera, gracias a la gran cantidad de luz natural que filtran hacia el interior de la vivienda.
Todos nuestras casas y chalets prefabricados se pueden ajustar a tus necesidades específicas, lo que te permitirá participar activamente en el diseño de tu propia casa.
Cuéntanos tu sueño, nosotros lo construimos.
Construimos casas modernas prefabricadas con carácter según sus expectativas.


VME en Facebook Construcción de Viviendas VME para ver más casas prefabricadas en Valencia y toda España.
consulte Memoria de Calidades de las casas prefabricadas pasivas marca © Viviendas VME.
Catálogo Completo de Casas Prefabricadas Modelos y Precios
Descubre nuestras construcciones prefabricadas tipo chalets ó viviendas modernas pasivas de alta calidad.
Visite nuestra pagina Facebook Construcción de Viviendas VME No te pierdes nuestras novedades, fotos y modelos de casas prefabricadas en proceso de construcción. Dale al «Me Gusta y Comparte»