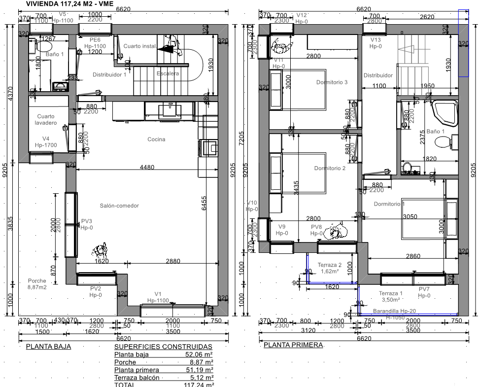
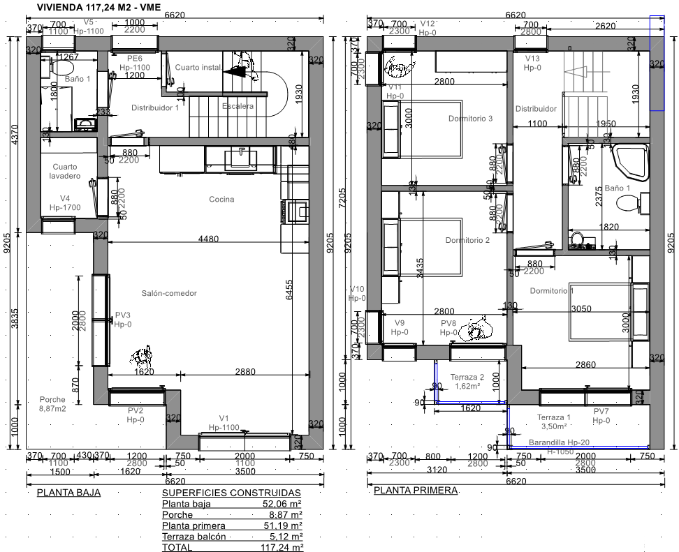
Vivienda prefabricada Pontevedra 117,24m2 con 3 dormitorios en Oferta.
Majestuosa vivienda prefabricada con fachada de hormigón, en tonos claros, se abren hacia el exterior con su apariencia monumental.
¿Qué te parece, te gusta esta vivienda prefabricada de alta calidad?
Si quieres salirte de las tendencias y darle a tu casa prefabricada de alta calidad un estilo más personal, consúltenos.
Personalizamos tu vivienda prefabricada adaptándola a tu forma de vida.
¡Será única!
La sostenibilidad en construcción de viviendas prefabricadas no solo consiste en salvar el medio ambiente, sino también en ahorrar dinero.
Al crear una vivienda prefabricada sostenible, el cliente puede reducir su huella de carbono y ahorrar en sus facturas de gas, agua o electricidad.


VME en Facebook Construcción de Viviendas VME ver casas prefabricadas en Pontevedra y toda España.
Por favor ingrese su nombre de usuario o dirección de correo electrónico. Recibirá un enlace para crear una nueva contraseña por correo electrónico.
